八王子市の一戸建て|ハウジングプラザ館 > (土地(売買))地域から探す > 八王子市 > 西八王子駅 長房 建築条件付き土地
約35坪、近隣商業地域、建蔽率80 容積率200










(※元利均等方式 金利5.00%まで ※返済年数5~50年まで入力できます)
(※ボーナスは年2回で計算しています。1000万円まで入力できます)
(※物件購入時、その他諸費用が発生する場合がございます)
| 所在地 | 東京都八王子市長房町551-99 | ||
|---|---|---|---|
| 交通 | |||
| 価格 | 1,700万円 | ||
| 土地の敷金/保証金 | -/- | 借地料/借地期間 | -/- |
| 土地面積(坪数) | 116.89㎡(35.35坪) | 坪単価 | 48.09万円 |
| 私道負担面積/セットバック | -/無 | 高圧線下面積 | - |
| 傾斜地部分面積 | - | 路地状敷地 | - |
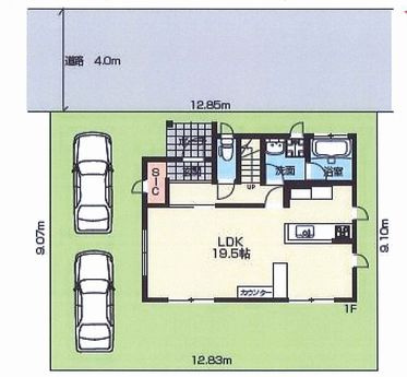
| 土地権利 | 所有権 | 接道状況 | 一方(北 公道 4.0m 間口 12.8m) |
| 都市計画 | 市街化区域 | 用途地域 | 近隣商業 |
| 建築条件 | - | 地目/地勢 | 宅地/- |
| 建ぺい率 | 80% | 容積率 | 200% |
| 総区画数 | - | 販売区画数 | - |
| 国土法届出要否 | 不要 | その他の法令上の制限 | - |
| 取引態様 | 仲介 | 現況 | - |
| 引渡時期 | 即時 | 引渡条件 | - |
| 最適用途 | 住宅用地 | ||
| 物件番号 | 90928499 | 取引条件の有効期限 | 2025年11月25日 |
| 設備条件 |
|
||
| 条件(その他) | 建築条件付き | ||
| 取扱会社 |
|
||
| QRコード |
このQRコードを読み取ることで、スマホでも物件情報を確認できます。 |
||
※地図上に表示される物件の位置は付近住所に所在することを表すものであり、実際の物件所在地とは異なる場合がございます。